«Le Fil Rouge»: Tagesstruktur und Kindergarten

Für die Tagesstruktur und den optionalen Doppelkindergarten wird die bestehende Turnhalle am Gurnigelweg umgenutzt.

Hinweis: Dieser Artikel ist ein Ausschnitt aus dem Projektvorschlag «Le Fil Rouge» von Neon Deiss. Das Projekt wird in der Planungsphase mit dem Architekturteam und mit Vertreter*innen aus Belp weiterentwickelt.

Für die Tagesstruktur und den optionalen Doppelkindergarten wird die bestehende Turnhalle am Gurnigelweg umgenutzt. Von der Schule wird für die Tagesbetreuung ein eigenständiges Haus gewünscht, das die Verbindung zwischen Unterricht und unterrichtsfreier Zeit ermöglicht und allen schulpflichtigen Kindern der Gemeinde Belp offen steht. Die zweistöckige Turnhalle eignet sich ideal für diesen Zweck und kann mit wenig Aufwand umgebaut werden.

Tagesstruktur in der ehemaligen Turnhalle.
Tagesstruktur in der ehemaligen Turnhalle.

Die Anbindung auf verschiedenen Niveaus ermöglicht die gewünschte Entflechtung der verschiedenen Altersgruppen: auf dem Niveau des heutigen Lernschwimmbeckens kann für die kleineren Kinder (KiGa/Basisstufe) ein eigener Raum für den Rückzug platziert werden. Die Schüler der Oberstufe kommen über den nördlichen Zugang direkt in die ehemalige Turnhalle, den neuen Mehrzweck- und Essraum. Mittels einfachem Einbau (Schrankfront mit Galerie) wird die Erschliessung räumlich vom Aufenthaltsraum getrennt. Eine Unterteilung und/oder Nischenbildung erfolgt über einfache, schallabsorbierende Vorhänge. Ein aussen angebauter Lift ermöglicht die gehbehindertengerechte Anbindung, ohne dass die bestehende Struktur angepasst werden muss. Die Turnhalle – ein von vielen Kindern sehr geliebter Ort des Schulalltags – bleibt spürbar sowohl räumlich als auch in den Materialien und ist so ideal als Ort der Freizeitgestaltung für die SchülerInnen.

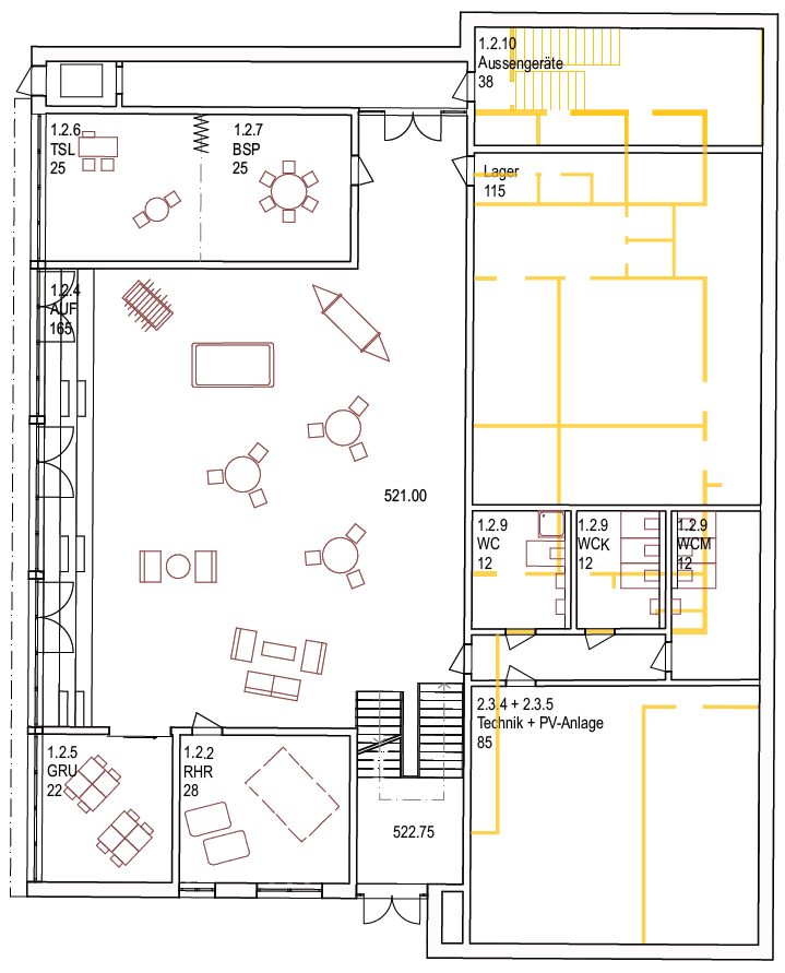
Platzgeschoss Tagesstruktur
Platzgeschoss Tagesstruktur

Der Standort Kindergarten im Übergang zum Wohnquartier, mit Morgenlicht und klar zugeordnetem Aussenraum zum höherliegenden Gurnigelweg ist ideal. Mit Oberlichteinbauten für die Gruppenräume und einer raumhohen Verglasung zum Gurnigelweg hin entstehen schöne, zweckmässige Räume aus dem jetzigen Garderobenanbau. Die direkte Verbindung von Tagesbetreuung und Kindergarten bietet räumliche und personelle Synergiemöglichkeiten und ist positiv für den Betrieb wie auch für die Kinder. Die Turnhalle Gurnigel wird zum »Spielhuus«.

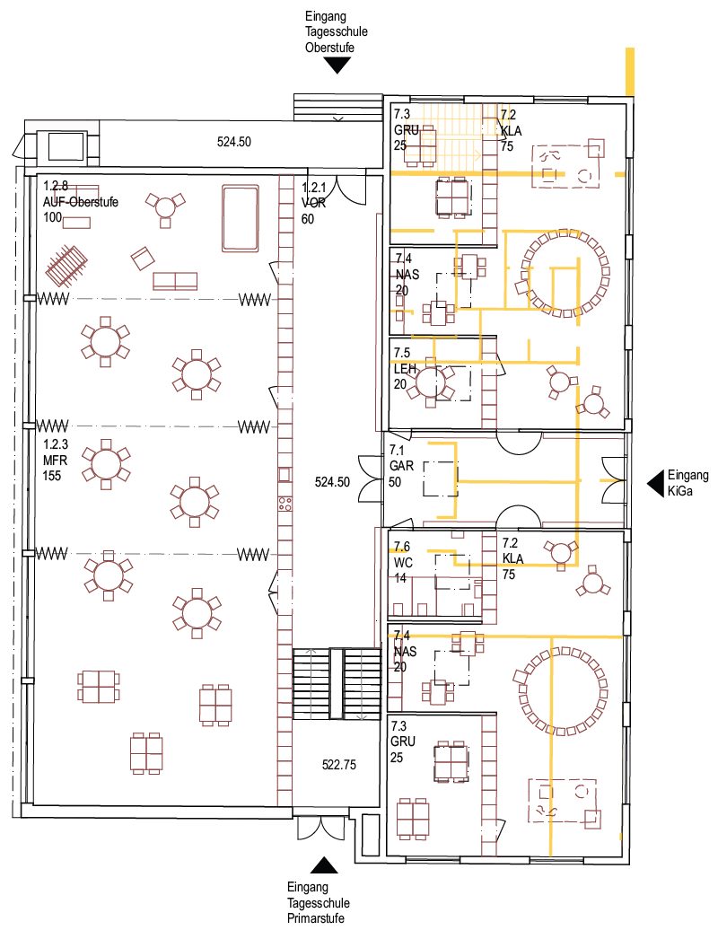
Tagesstruktur und Kindergarten am Gurnigelweg
Tagesstruktur und Kindergarten am Gurnigelweg
Über die Personen

Barbara Wiskemann ist diplomierte Architektin ETH BSA SIA. Sie ist Mitinhaberin des Architekturbüros Neon Deiss, dem Gewinnerteam des Projektwettbewerbs für die neue Schulanlage Mühlematt.

Michèle Mambourg ist diplomierte Architektin ETH BSA SIA. Sie ist Mitinhaberin des Architekturbüros Neon Deiss, dem Gewinnerteam des Projektwettbewerbs für die neue Schulanlage Mühlematt.

Nicole Deiss ist diplomierte Architektin ETH BSA SIA. Sie ist Mitinhaberin des Architekturbüros Neon Deiss, dem Gewinnerteam des Projektwettbewerbs für die neue Schulanlage Mühlematt.

Jan Roost ist Architekt. Er ist Teil von Neon Deiss, dem Gewinnerteam des Projektwettbewerbs für die neue Schulanlage Mühlematt.

Roberto Ruggiero ist Architekt. Er ist Teil von Neon Deiss, dem Gewinnerteam des Projektwettbewerbs für die neue Schulanlage Mühlematt.